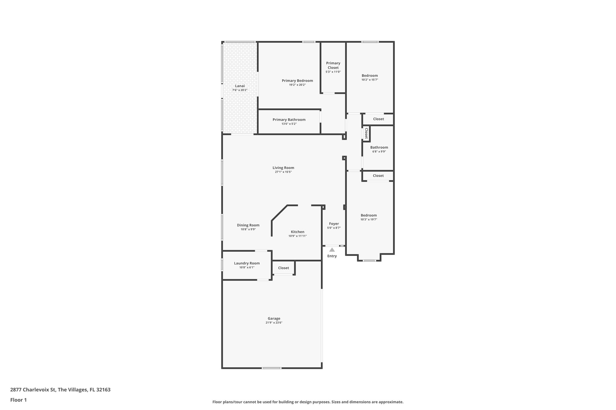
2877 Charlevoix St, The Villages, FL 32163
Toggle Navigation
Images
Floor Plans
3D Tour
Map
2877 Charlevoix St
The Villages, FL 32163
Scroll to Content
Images
Slideshow
Photo Grid
Hide
Previous
Next
Show more
Floor Plans
Slideshow
Photo Grid
Hide
Previous
Next
3D Tour