1953 Greeleyville Terrace, The Villages, FL 32162
Toggle Navigation
Images
Floor Plans
Map
1953 Greeleyville Terrace
The Villages, FL 32162
Scroll to Content
Images
Slideshow
Photo Grid
Hide
Previous
Next
Show more
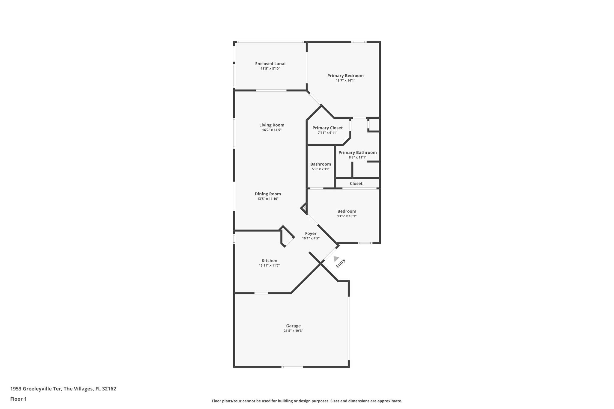
Floor Plans
Slideshow
Photo Grid
Hide
Previous
Next